
EN VENTA!!!!!!!!
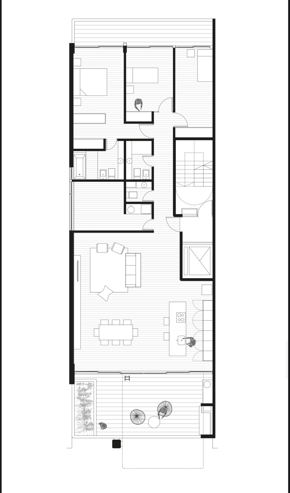
EXCELENTE PROYECTO EN ROSARIO!!!! LOZA desarrollo y construccion OBRING proyecto y direccion. Balcarce 129 !!!! Departamentos de 3 Dormitorios con balcon aterrazados. Barrio centro. 192,7m2, consta de 3 habitaciones, 2 baños. Mas toilette. Living Comedor y cocina integrada. habitación principal en suite. Balcon aterrazado con parrillero, Precio consultar. ROMINA PAREDES corredora inmobiliaria matricula 1116 consultas al 3413118005 www.rnnegociosinmobiliarios.com.ar
| Price: | 430.000 |
| Address: | BALCARCE 129 |
| City: | ROSARIO - ROSARIO |
| County: | centro |
| State: | SANTA FE |
| Zip Code: | 2000 |
| Year Built: | a estrenar |
| Floors: | 8 |
| Square Feet: | 192,7 |
| Bedrooms: | 3 |
| Bathrooms: | 2 |
| Half Bathrooms: | 1 |
| Garage: | si |
| Pool: | si |
Localización
.







