
EN VENTA CASA DE TRES DORMITORIOS
Casa de pasillo 100 % eléctrica
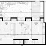
Pisos de porcelanato, aberturas de aluminio con DVH, placares con interiores, rack de tv, estanterías, placares de guardado, bomba de presión, aires acondicionados frio/calor instalados en cada ambiente, jardín parquizado con toma de agua exterior, parrillero con bacha y bajo mesada, luz trifasica, luminaria incorporada, mobiliario completo de cocina, horno y anafe diferenciado, espacio técnico para heladera y lavarropas, 3 baños (2 completos) y con revestimiento en paredes, mesadas en silestone, accesorios y espejos colocados. purificador y canilla arriba del anafe Toallero en los baños. Super completa ! Consúltanos !
110 m2 mas 15,75 de patio
Valor 230.000 dls
Consultas al 3413118005 Romina Paredes CI Mat 1116 www.rnnegociosinmobiliarios.com.ar
| Price: | 230.000 dólares |
| Address: | santiago 1238 |
| City: | ROSARIO |
| County: | LOURDES |
| Zip Code: | 2000 |
| Year Built: | a estrenar |
| Floors: | 2 |
| Square Feet: | 110 |
| Bedrooms: | 3 |
| Bathrooms: | 3 |
Localización
.



